Welcome to Crider Designs! I'm here to help you bring your dream home to life. Whether you're looking for custom layouts, detailed plans, or expert guidance, I am dedicated to making your vision a reality. Let’s get started! Explore these services to see how I can help you achieve your vision!

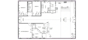
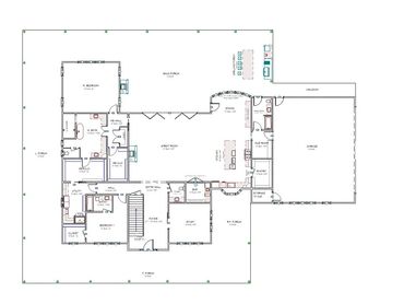
Crider Designs creates detailed floor plan designs
for residential and commercial spaces.
New homes, barndominiums, additions and remodels.
Services include:
Explore how we can help you create your dream home!

At Crider Designs my mission is to provide high quality
customer service that exceeds my clients' expectations.
I am dedicated to working with the homeowner or
builder to create a beautiful functional space for their
new home, remodel or addition.



We use cookies to analyze website traffic and optimize your website experience. By accepting our use of cookies, your data will be aggregated with all other user data.